.
EL MASNOU
2025 | BUILT
AUTHORS: GASPAR BOSCH AND SILVIA BAULIES
CLIENT: PRIVATE
PHOTOGRAPHY: POL MASIP

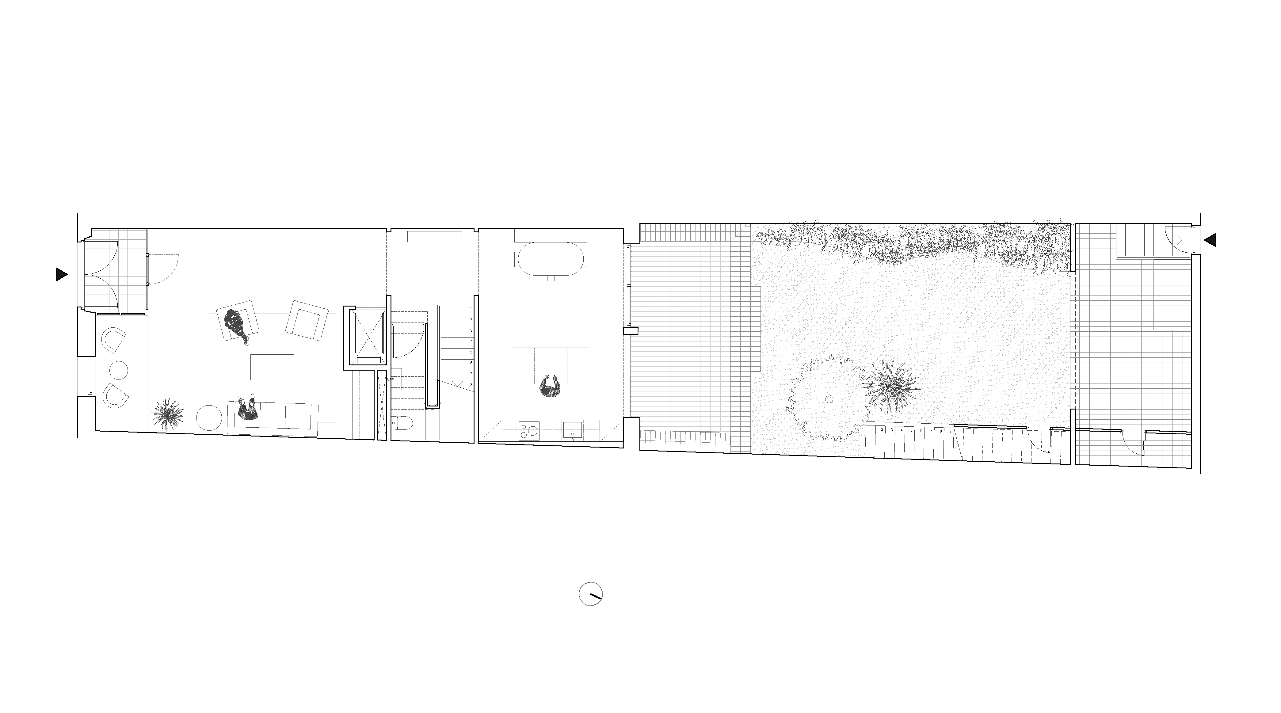
This project stems from the rehabilitation of a stately townhouse dating from 1900, located in the heart of El Masnou. After years of disuse, the house showed the passage of time but still preserved its essence intact: a noble architecture with balanced proportions.
The plot, which connects two streets —one at the main façade and another at the back of the garden— has made it possible to open up the house and create a more fluid relationship between the interior and the exterior. The intervention largely preserves the original layout, enhancing the existing spaces and the character of the building, while incorporating substantial improvements to adapt it to contemporary needs.
The project focuses on maximizing natural light and improving the building’s energy performance by adding insulation to the façades and the roof, always with respect for the original architectural language. The ceiling paintings, preserved as they were found, became the chromatic starting point for the rest of the intervention: their tones inspired the color and material palette used throughout the other spaces, establishing a subtle dialogue between past and present.
CARRER EL TORRENT 3, BAIXOS, 08302 MATARÓ
HELLO@BESTUDIO.CAT
+34 680 99 72 09
+34 680 99 72 09
FOLLOW US
ON INSTAGRAM
ON INSTAGRAM
© BESTUDIO 2020
DESIGN BY @FREDSOMLO
DESIGN BY @FREDSOMLO