



















.
MATARÓ, BARCELONA
2020 | CONSTRÜIT
AUTORS: SILVIA BAULIES I GASPAR BOSCH
PROMOTOR: PRIVAT
FOTOGRAFIA: BE STUDIO


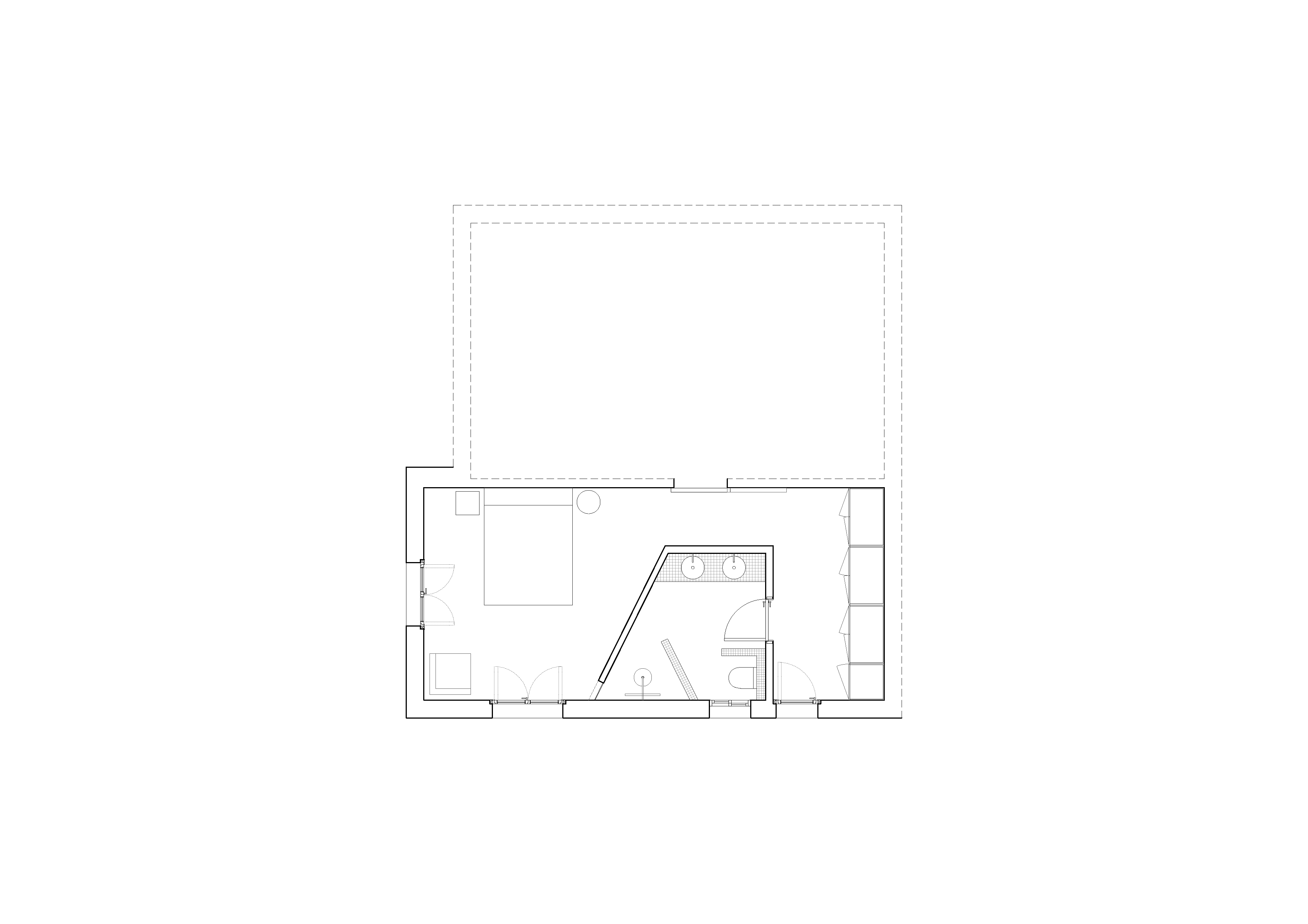
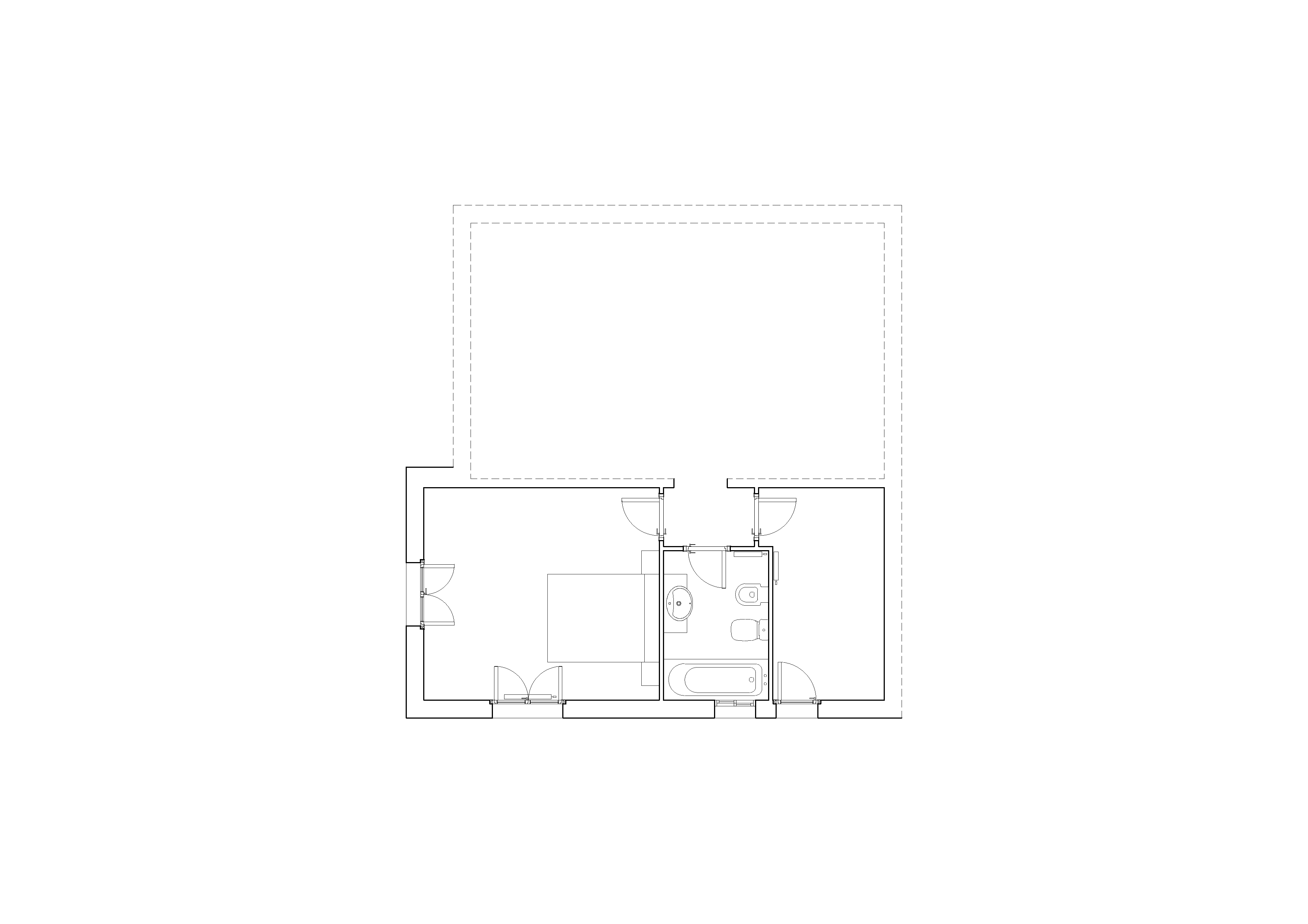
Maria Claret és una intervenció parcial en una casa on només volien renovar un bany i una habitació. Es tracta el bany com una peça singular dins de l’habitació. Aquesta peça separa la zona de dormitori de la zona de vestidor, amb una forma trapezoïdal que facilita les circulacions i dona sensació d’amplitud. El material d’aquesta peça entra cap a l’interior, on trobem un conjunt de murs que delimiten els espais per donar privacitat però sense treure llum natural ni segregar les peces.
.
.


MATARÓ, BARCELONA
2020 | CONSTRÜIT
AUTORS: SILVIA BAULIES I GASPAR BOSCH
PROMOTOR: PRIVAT
FOTOGRAFIA: BE STUDIO
Maria Claret és una intervenció parcial en una casa on només volien renovar un bany i una habitació. Es tracta el bany com una peça singular dins de l’habitació. Aquesta peça separa la zona de dormitori de la zona de vestidor, amb una forma trapezoïdal que facilita les circulacions i dona sensació d’amplitud. El material d’aquesta peça entra cap a l’interior, on trobem un conjunt de murs que delimiten els espais per donar privacitat però sense treure llum natural ni segregar les peces.
CARRER EL TORRENT 3, BAIXOS, 08302 MATARÓ
HELLO@BESTUDIO.CAT
+34 680 99 72 09
+34 680 99 72 09
© BESTUDIO 2020
DESIGN BY @FREDSOMLO
DESIGN BY @FREDSOMLO
CARRER EL TORRENT 3, BAIXOS, 08302 MATARÓ
HELLO@BESTUDIO.CAT
+34 680 99 72 09
+34 680 99 72 09
SEGUEIX-NOS
A INSTAGRAM
A INSTAGRAM
© BESTUDIO 2020
DESIGN BY @FREDSOMLO
DESIGN BY @FREDSOMLO