































.
POBLE SEC, BARCELONA
2019 | CONSTRUÏT
AUTORS: SILVIA BAULIES I GASPAR BOSCH
PROMOTOR: PRIVAT
FOTOGRAFIA: BE STUDIO

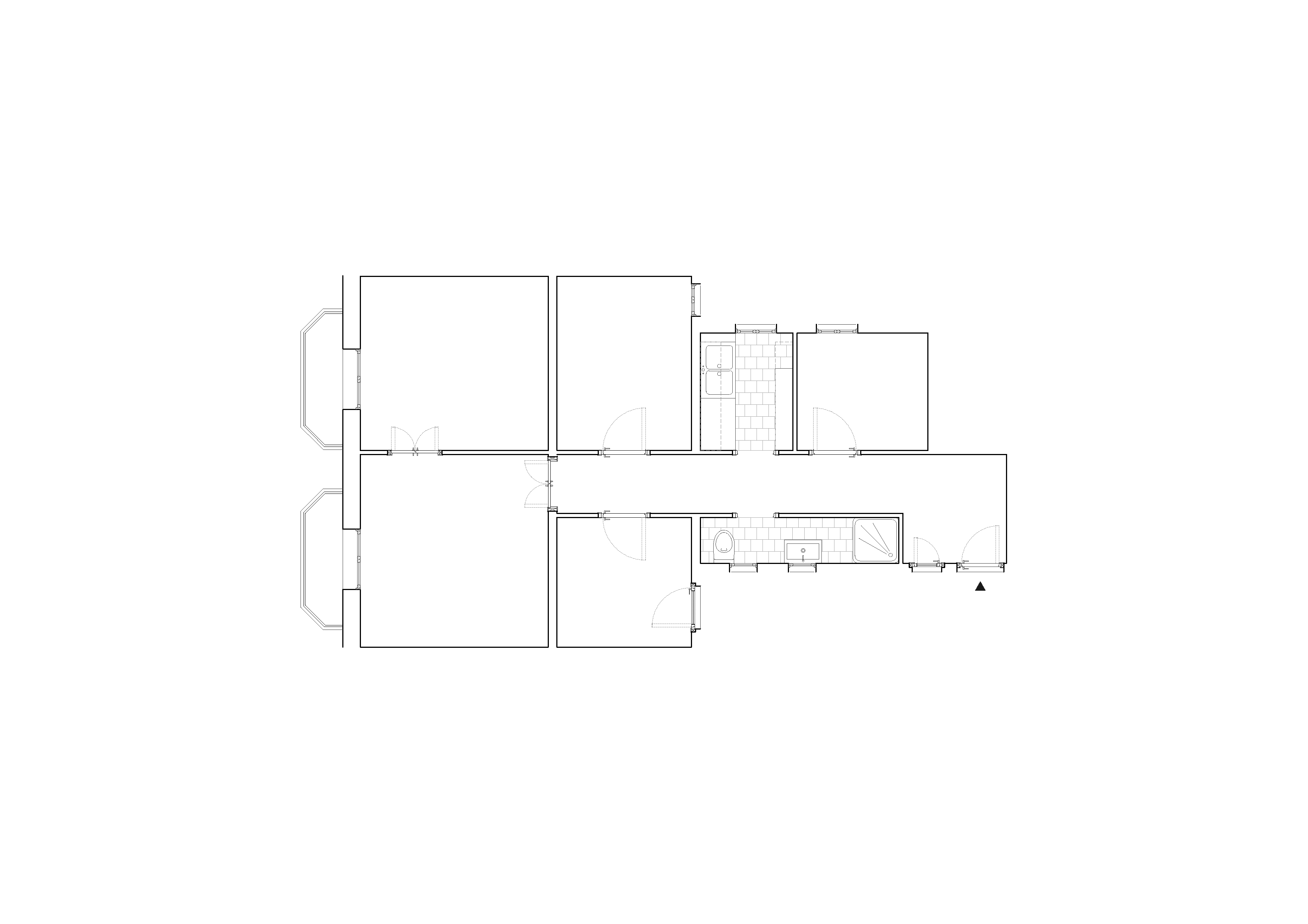
Partim d'un pis petit i molt fragmentat. Decidim eliminar tots els envans i ens quedem amb l’esquelet del pis, que està format únicament per tres espais separats per les parets estructurals. Als extrems s’hi disposen dues sales d’usos múltiples, mentre que a l’espai central situem les zones més privades. Deixem l’espai central obert aconseguint un habitatge poc fragmentat i amb relacions visuals creuades, però el diferenciem amb la materialitat i juguem amb la simetria per emfatitzar-ne el seu caràcter més privat.
.
.

POBLE SEC, BARCELONA
2019 | CONSTRUÏT
AUTORS: SILVIA BAULIES I GASPAR BOSCH
PROMOTOR: PRIVAT
FOTOGRAFIA: BE STUDIO
Partim d'un pis petit i molt fragmentat. Decidim eliminar
tots els envans i ens quedem amb l’esquelet del pis, que està format únicament
per tres espais separats per les parets estructurals. Als extrems s’hi disposen
dues sales d’usos múltiples, mentre que a l’espai central situem les zones més
privades.
Deixem l’espai central obert aconseguint un habitatge poc fragmentat i
amb relacions visuals creuades, però el diferenciem amb la materialitat i
juguem amb la simetria per emfatitzar-ne el seu caràcter més privat.
CARRER EL TORRENT 3, BAIXOS, 08302 MATARÓ
HELLO@BESTUDIO.CAT
+34 680 99 72 09
+34 680 99 72 09
SEGUEIX-NOS
A INSTAGRAM
A INSTAGRAM
© BESTUDIO 2020
DESIGN BY @FREDSOMLO
DESIGN BY @FREDSOMLO
CARRER EL TORRENT 3, BAIXOS, 08302 MATARÓ
HELLO@BESTUDIO.CAT
+34 680 99 72 09
+34 680 99 72 09
SEGUEIX-NOS
A INSTAGRAM
A INSTAGRAM
© BESTUDIO 2020
DESIGN BY @FREDSOMLO
DESIGN BY @FREDSOMLO