













































.
MATARÓ, BARCELONA
2023 |
CONSTURÏT
AUTORS: GASPAR BOSCH I SILVIA BAULIES
DIRECCIÓ D’EXECUCIÓ: AIM FACILITY
ESTRUCTURA: CAMPANYÀ VINYETA
PROMOTOR: PRIVAT
FOTOGRAFIA: ADRIÀ GOULA

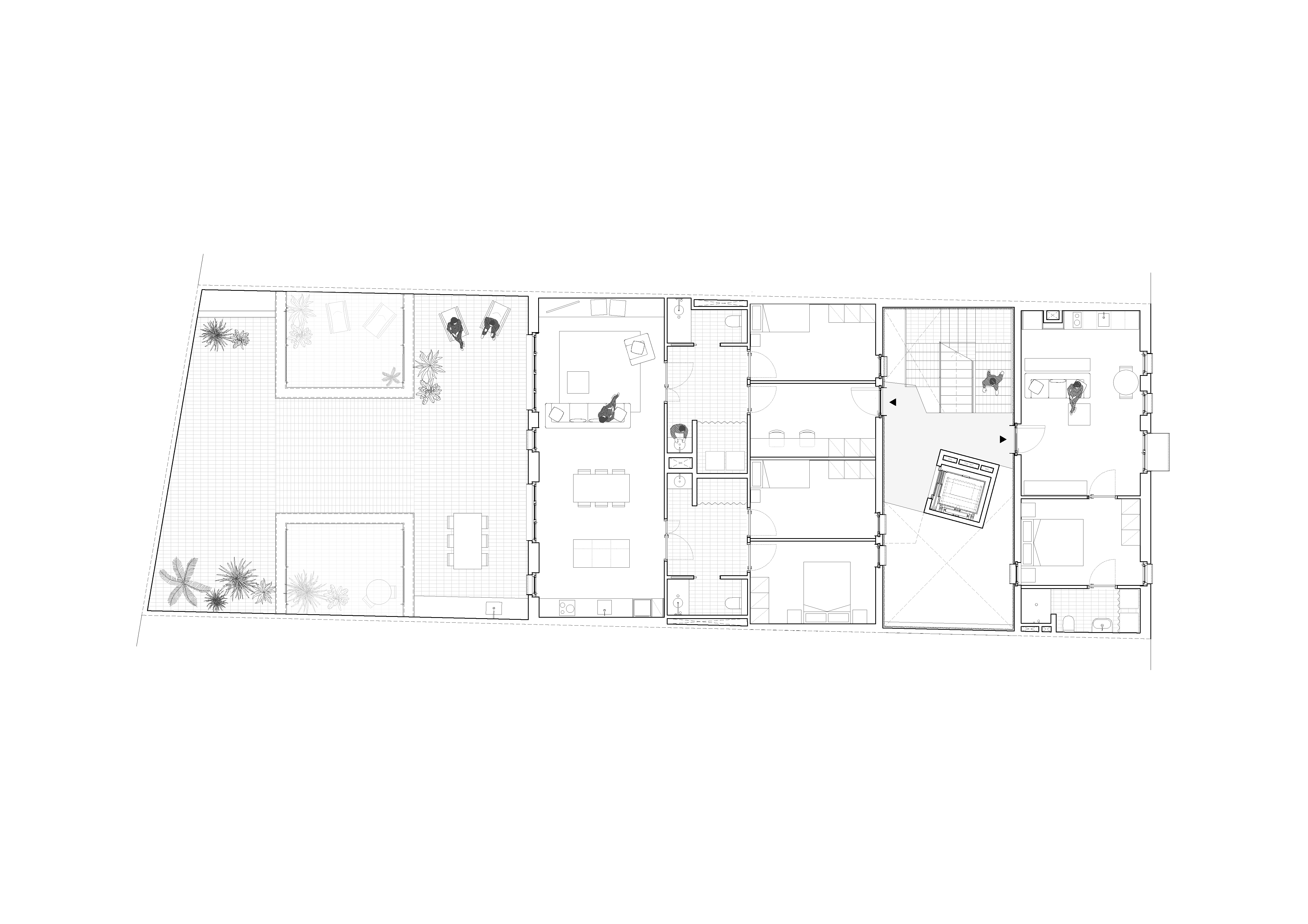
Disposem d’un solar buit en una trama urbana compacta molt marcada per la casa de cos. Es proposa un edifici conseqüent amb aquesta trama, d’aspecte robust i esgotant el volum màxim permès, però amagant en el seu interior un gran buit central que proporcioni una segona façana a cadascun dels habitatges. Amb aquesta estratègia aconseguim 7 habitatges molt confortables que reben llum natural de dues orientacions diferents i gaudeixen de ventilació creuada. S'estructura tot l'edifici amb un patró de franges que ens permet agrupar i organitzar els espais servidors en les zones centrals dels habitatges dividint els espais servits en dues zones situades en ambdues façanes. Aquestes zones, es poden subdividir formant estàncies més petites que ens permeten segregar usos. Com a resultat obtenim una flexibilitat que facilita l’adaptació de l’habitatge a les necessitats de cada usuari.
.
.

MATARÓ, BARCELONA
2023
|
CONSTRUÏT
AUTORS: GASPAR BOSCH I SILVIA BAULIES
DIRECCIÓ D’EXECUCIÓ: AIM FACILITY
ESTRUCTURA: CAMPANYÀ VINYETA
PROMOTOR: PRIVAT
FOTOGRAFIA: ADRIÀ GOULA
Disposem d’un solar buit en una trama urbana compacta
molt marcada per la casa de cos. Es proposa un edifici conseqüent amb aquesta
trama, d’aspecte robust i esgotant el volum màxim permès, però amagant en el
seu interior un gran buit central que proporcioni una segona façana a cadascun
dels habitatges. Amb aquesta estratègia aconseguim 7 habitatges molt
confortables que reben llum natural de dues orientacions diferents i gaudeixen
de ventilació creuada.
S'estructura tot l'edifici amb un patró de franges que
ens permet agrupar i organitzar els espais servidors en les zones centrals dels
habitatges dividint els espais servits en dues zones situades en ambdues
façanes. Aquestes zones, es poden subdividir formant estàncies més petites que
ens permeten segregar usos. Com a resultat obtenim una flexibilitat que
facilita l’adaptació de l’habitatge a les necessitats de cada usuari.
CARRER EL TORRENT 3, BAIXOS, 08302 MATARÓ
HELLO@BESTUDIO.CAT
+34 680 99 72 09
+34 680 99 72 09
SEGUEIX-NOS
A INSTAGRAM
A INSTAGRAM
© BESTUDIO 2020
DESIGN BY @FREDSOMLO
DESIGN BY @FREDSOMLO
CARRER EL TORRENT 3, BAIXOS, 08302 MATARÓ
HELLO@BESTUDIO.CAT
+34 680 99 72 09
+34 680 99 72 09
SEGUEIX-NOS
A INSTAGRAM
A INSTAGRAM
© BESTUDIO 2020
DESIGN BY @FREDSOMLO
DESIGN BY @FREDSOMLO