.
EL MASNOU
2025 | CONSTRUÏT
AUTORS: SILVIA BAULIES I GASPAR BOSCH
PROMOTOR: PRIVAT
FOTOGRAFIA: POL MASIP

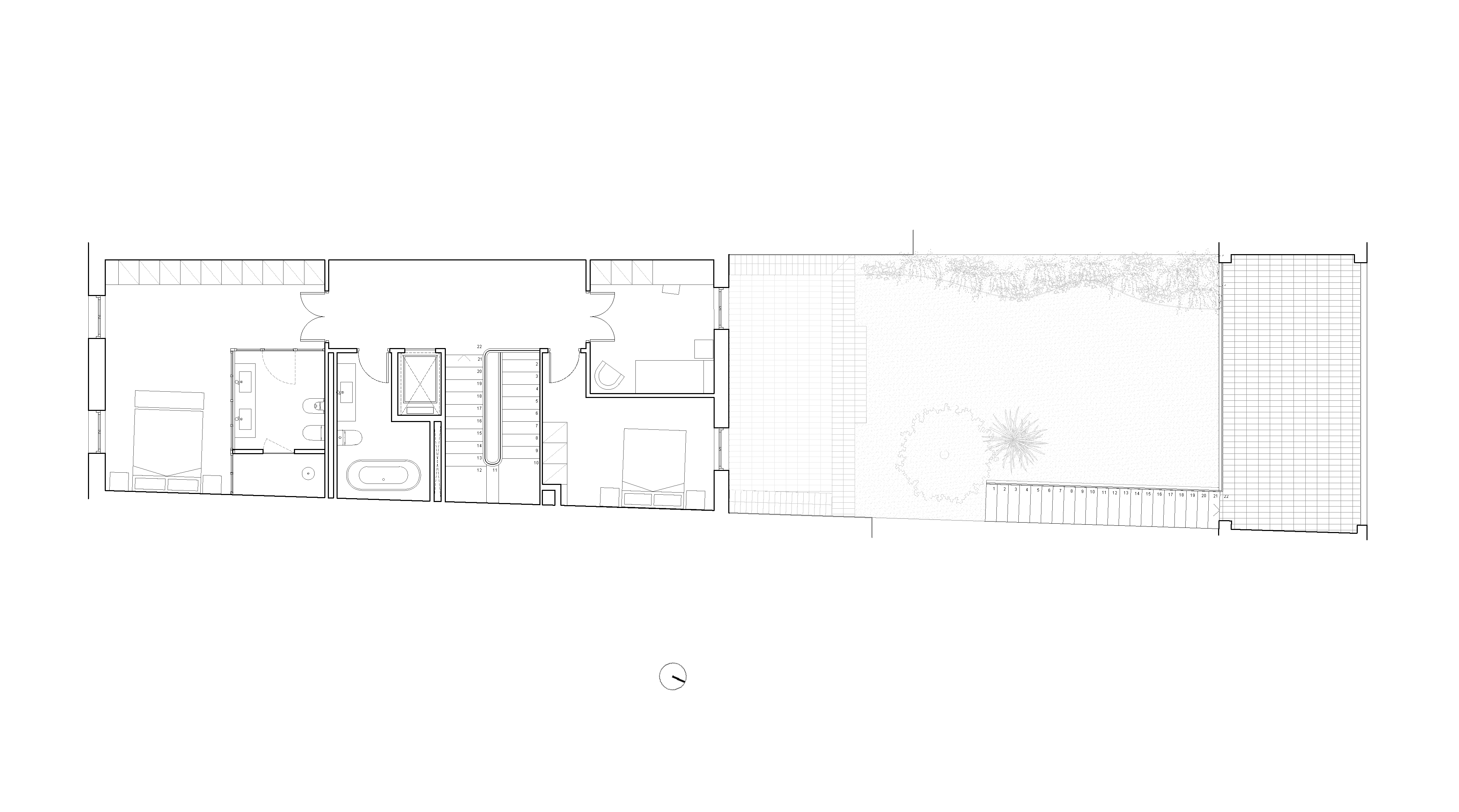
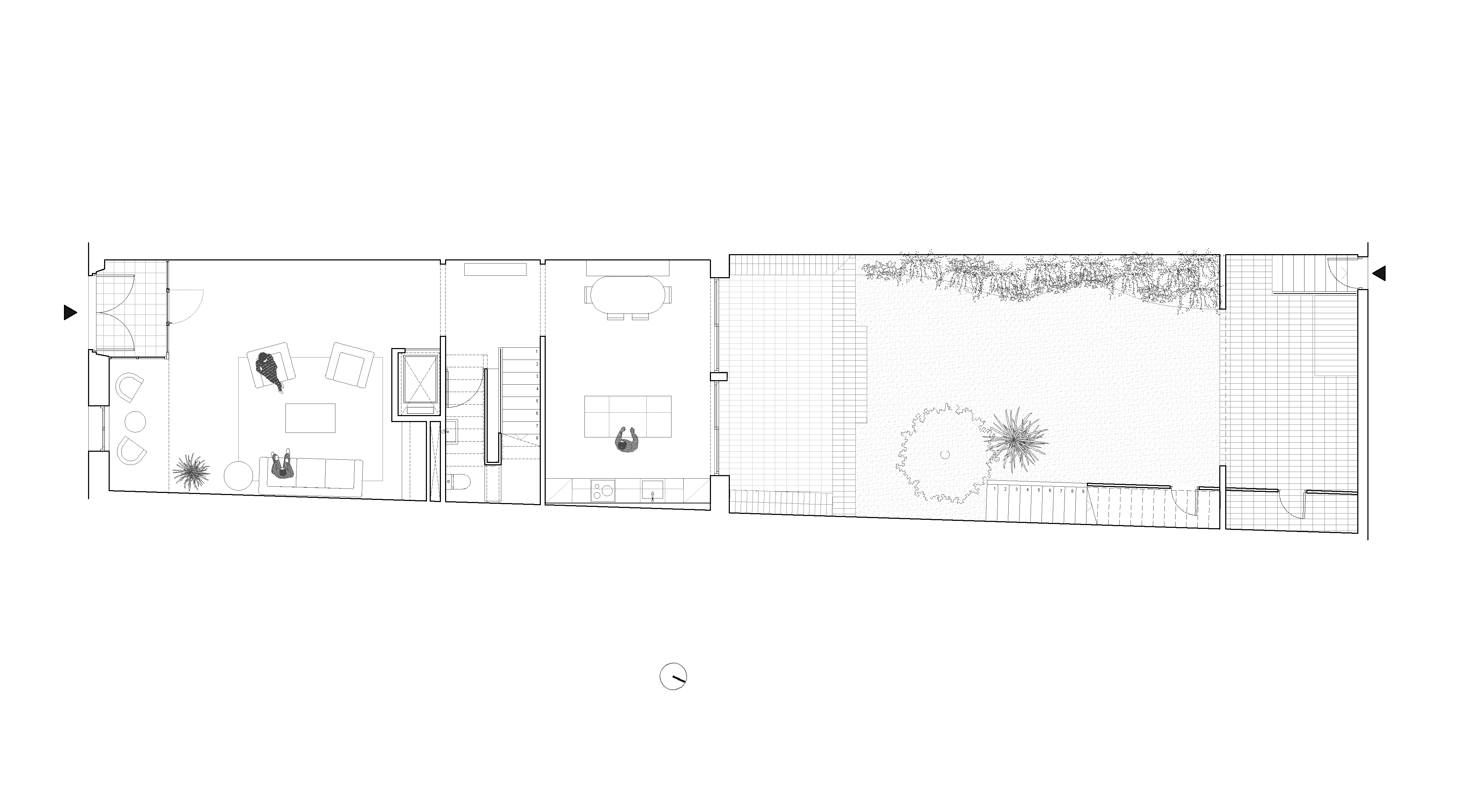
Aquest projecte parteix de la rehabilitació d’una casa de cos senyorial datada de l’any 1900, situada al cor del Masnou. Després d’anys en desús, l’habitatge mostrava el pas del temps però també conservava intacta la seva essència: una arquitectura noble i amb proporcions equilibrades.
La situació de la casa, que comunica dos carrers del nucli antic, respon a la tipologia tradicional del Masnou, on les parcel·les allargades connectaven el teixit urbà amb els horts i patis posteriors. Aquesta estructura s’ha mantingut, mentre que la distribució interior s’ha adaptat per respondre millor a les necessitats actuals, posant en valor els espais existents i el caràcter original de l’edifici.
L’actuació se centra en potenciar l’entrada de llum natural i en actualitzar-ne el comportament energètic, amb la incorporació d’aïllament a les façanes i a la coberta, sempre des del respecte pel llenguatge original. Les pintures del sostre, conservades tal com es van trobar, han esdevingut punt de partida cromàtic per a la resta de la intervenció: els seus tons han inspirat la paleta de colors i materials utilitzats en altres espais, establint un diàleg subtil entre passat i present.
.

EL MASNOU
2025 | CONSTRUÏT
AUTORS: SILVIA BAULIES I GASPAR BOSCH
PROMOTOR: PRIVAT
FOTOGRAFIA: POL MASIP
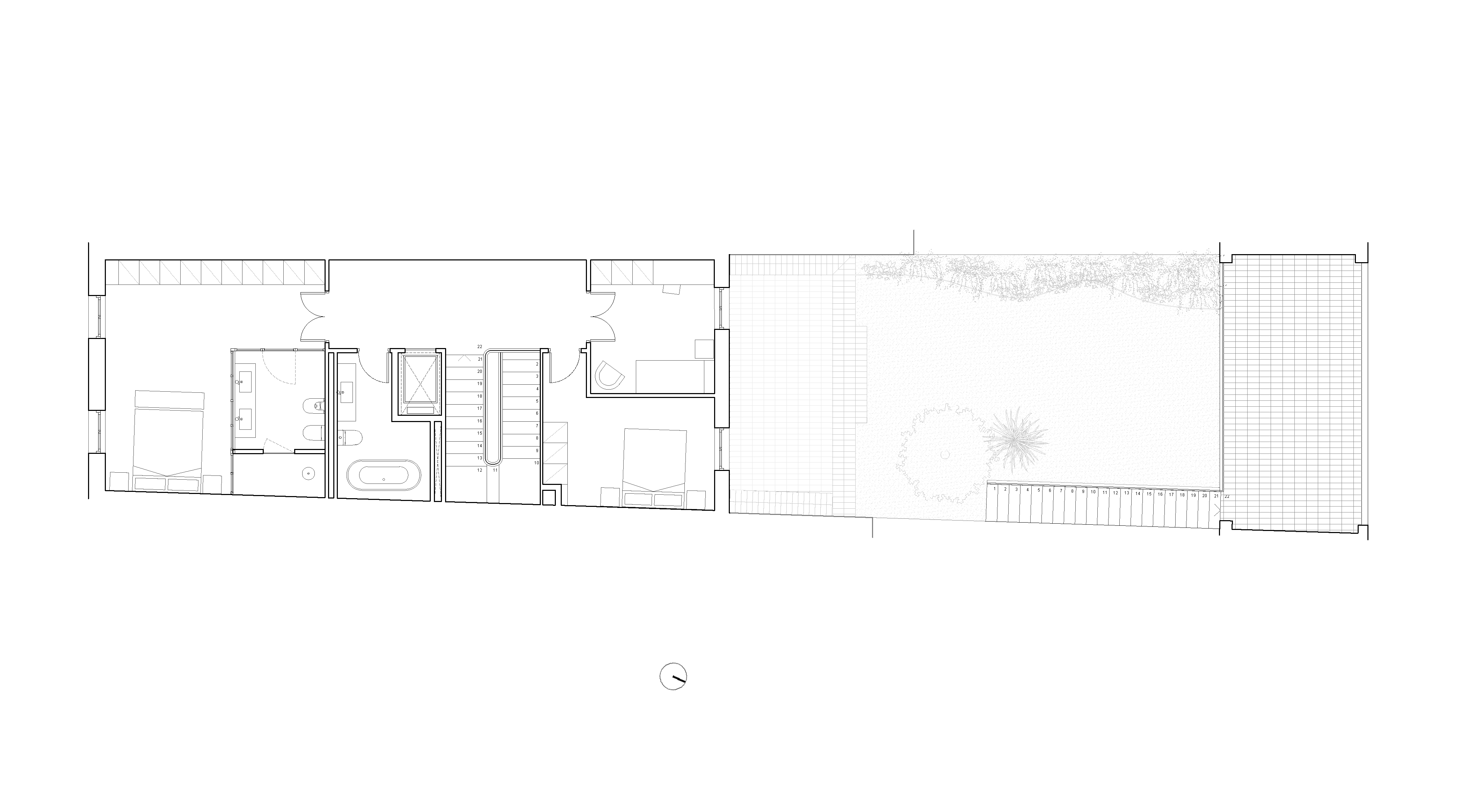
Aquest projecte parteix de la rehabilitació d’una casa de cos senyorial datada de l’any 1900, situada al cor del Masnou. Després d’anys en desús, l’habitatge mostrava el pas del temps però també conservava intacta la seva essència: una arquitectura noble i amb proporcions equilibrades.
La situació de la casa, que comunica dos carrers del nucli antic, respon a la tipologia tradicional del Masnou, on les parcel·les allargades connectaven el teixit urbà amb els horts i patis posteriors. Aquesta estructura s’ha mantingut, mentre que la distribució interior s’ha adaptat per respondre millor a les necessitats actuals, posant en valor els espais existents i el caràcter original de l’edifici.
L’actuació se centra en potenciar l’entrada de llum natural i en actualitzar-ne el comportament energètic, amb la incorporació d’aïllament a les façanes i a la coberta, sempre des del respecte pel llenguatge original. Les pintures del sostre, conservades tal com es van trobar, han esdevingut punt de partida cromàtic per a la resta de la intervenció: els seus tons han inspirat la paleta de colors i materials utilitzats en altres espais, establint un diàleg subtil entre passat i present.
CARRER EL TORRENT 3, BAIXOS, 08302 MATARÓ
HELLO@BESTUDIO.CAT
+34 680 99 72 09
+34 680 99 72 09
SEGUEIX-NOS
A INSTAGRAM
A INSTAGRAM
© BESTUDIO 2020
DESIGN BY @FREDSOMLO
DESIGN BY @FREDSOMLO
CARRER EL TORRENT 3, BAIXOS, 08302 MATARÓ
HELLO@BESTUDIO.CAT
+34 680 99 72 09
+34 680 99 72 09
SEGUEIX-NOS
A INSTAGRAM
A INSTAGRAM
© BESTUDIO 2020
DESIGN BY @FREDSOMLO
DESIGN BY @FREDSOMLO