.
EL MASNOU
2025 | CONSTRUIDO
AUTORES: SILVIA BAULIES Y GASPAR BOSCH
PROMOTOR: PRIVADO
FOTOGRAFÍA: POL MASIP
VOLVER

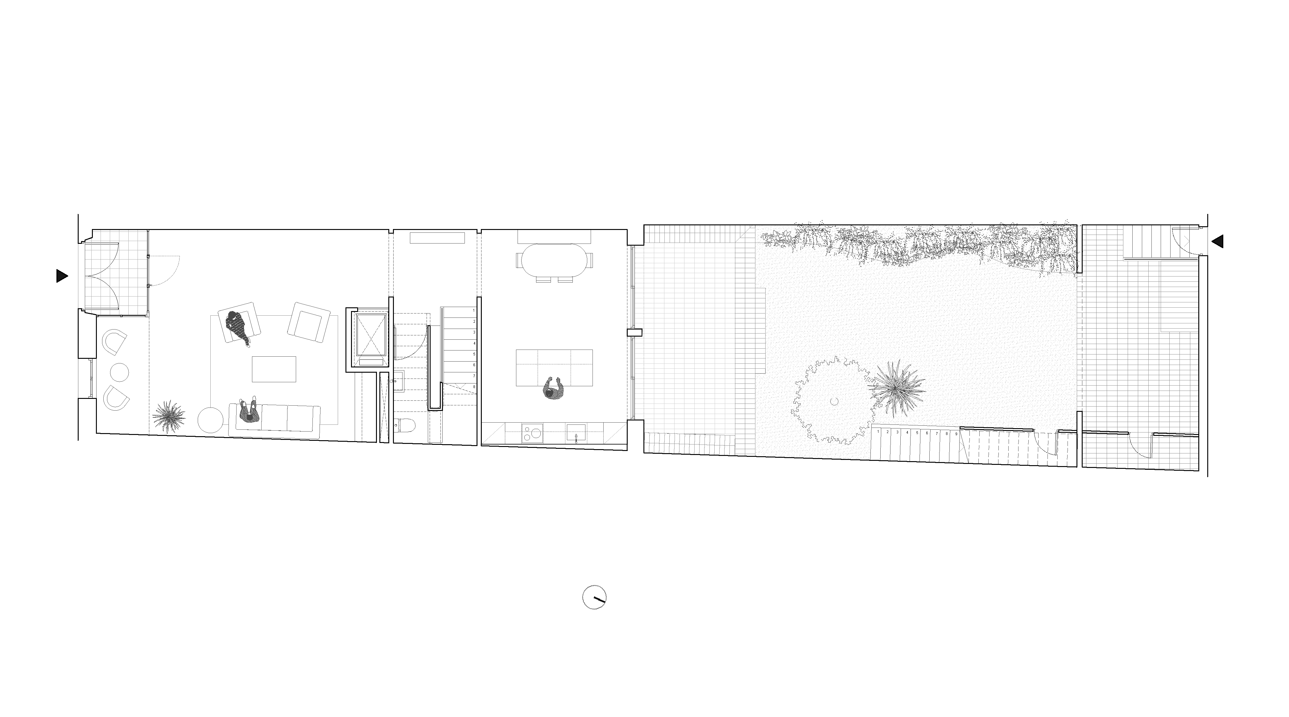
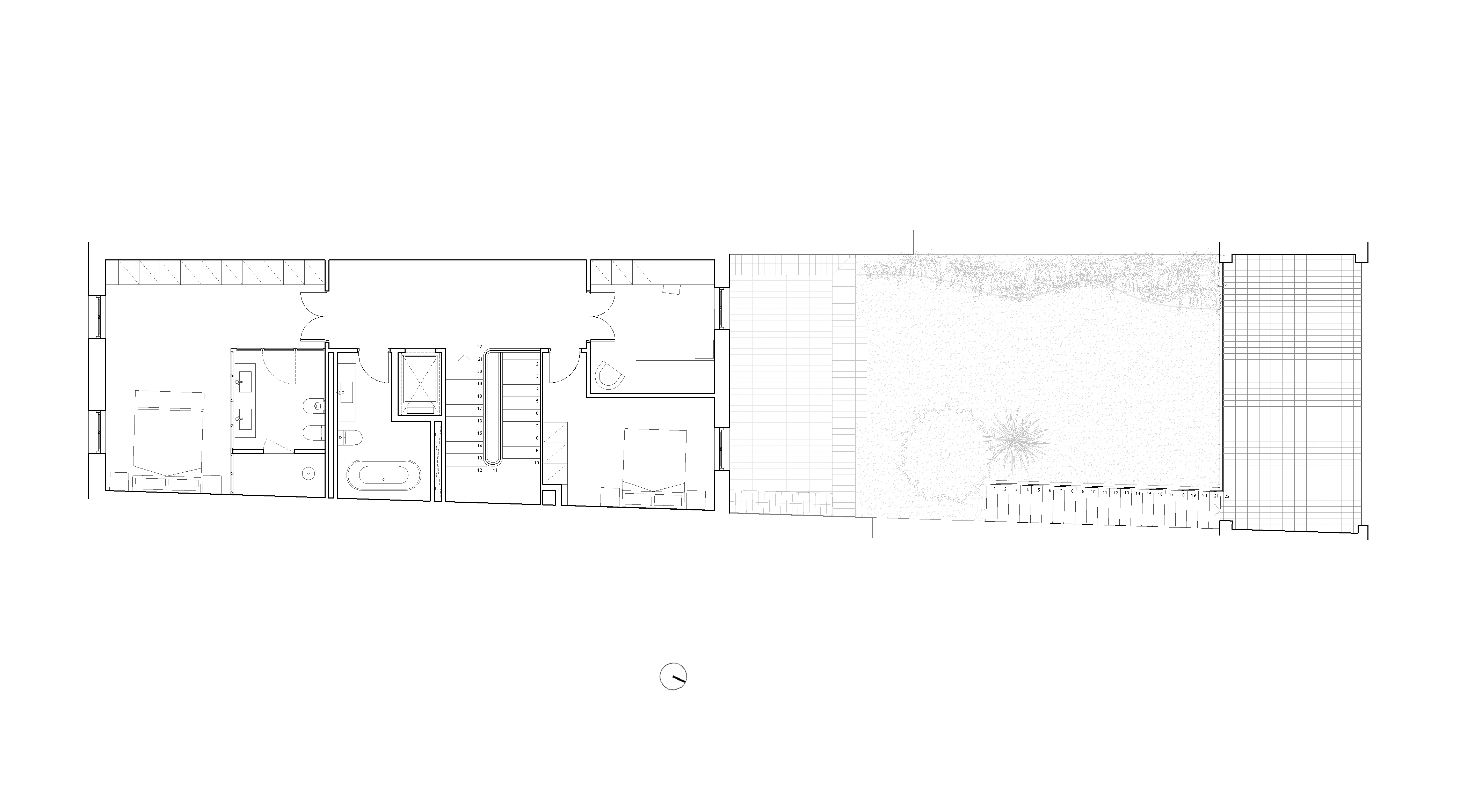
Este proyecto parte de la rehabilitación de una casa de carácter señorial datada en el año 1900, situada en el corazón de El Masnou. Tras años en desuso, la vivienda mostraba el paso del tiempo, pero también conservaba intacta su esencia: una arquitectura noble y de proporciones equilibradas.
La ubicación de la casa, que comunica dos calles del casco antiguo, responde a la tipología tradicional de El Masnou, donde las parcelas alargadas conectaban el tejido urbano con los huertos y patios posteriores. Esta estructura se ha mantenido, mientras que la distribución interior se ha adaptado para responder mejor a las necesidades actuales, poniendo en valor los espacios existentes y el carácter original del edificio.
La intervención se centra en potenciar la entrada de luz natural y en actualizar su comportamiento energético, incorporando aislamiento en las fachadas y en la cubierta, siempre desde el respeto por el lenguaje original. Las pinturas del techo, conservadas tal como se encontraron, se han convertido en el punto de partida cromático para el resto de la intervención: sus tonos han inspirado la paleta de colores y materiales utilizados en otros espacios, estableciendo un diálogo sutil entre pasado y presente.
CARRER EL TORRENT 3, BAIXOS, 08302 MATARÓ
HELLO@BESTUDIO.CAT
+34 680 99 72 09
+34 680 99 72 09
SIGUENOS
EN INSTAGRAM
EN INSTAGRAM
© BESTUDIO 2020
DESIGN BY @FREDSOMLO
DESIGN BY @FREDSOMLO