



















.
BARCELONA
2023 | CONSTRUÏT
AUTORS: SILVIA BAULIES I GASPAR BOSCH
PROMOTOR: PRIVAT
FOTOGRAFIA: BE STUDIO

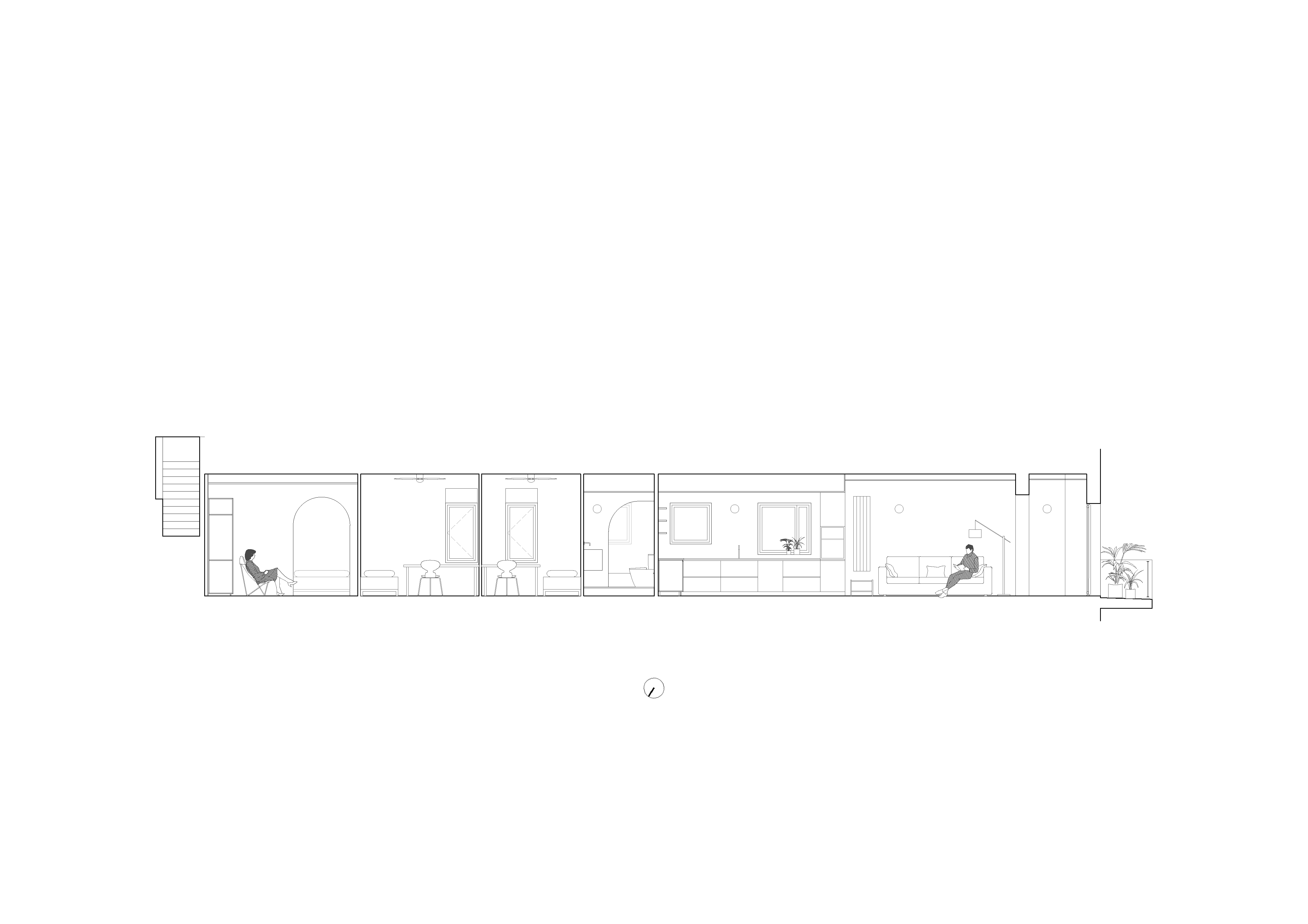
Sostres és el resultat d’una reforma integral en un pis singular. L’habitatge es troba en un edifici plurifamiliar que disposa de molta façana, de manera que els seus habitatges poden captar molta llum natural. La distribució interior inicial composa espais petits i foscos, de manera que la primera decisió és unir l’espai de sala d’estar, menjador i cuina, per tal que aquest espai únic tingui finestres en dues orientacions i augmenti molt la seva lluminositat. Recuperem la mida original de les finestres del bany i la cuina que havien estat retallades, i escurcem el llarg passadís per un millor funcionament de les circulacions. S’instal·len ventiladors en totes les estances i amb la nova distribució s’afavoreix la ventilació creuada per minimitzar el consum energètic.
.
.

BARCELONA
2023 | CONSTRUÏT
Sostres és el resultat d’una reforma integral en un pis
singular. L’habitatge es troba en un edifici plurifamiliar que disposa de molta
façana, de manera que els seus habitatges poden captar molta llum natural. La
distribució interior inicial composa espais petits i foscos, de manera que la
primera decisió és unir l’espai de sala d’estar, menjador i cuina, per tal que
aquest espai únic tingui finestres en dues orientacions i augmenti molt la seva
lluminositat. Recuperem la mida original de les finestres del bany i la cuina
que havien estat retallades, i escurcem el llarg passadís per un millor
funcionament de les circulacions. S’instal·len ventiladors en totes les
estances i amb la nova distribució s’afavoreix la ventilació creuada per
minimitzar el consum energètic.
CARRER EL TORRENT 3, BAIXOS, 08302 MATARÓ
HELLO@BESTUDIO.CAT
+34 680 99 72 09
+34 680 99 72 09
SEGUEIX-NOS
A INSTAGRAM
A INSTAGRAM
© BESTUDIO 2020
DESIGN BY @FREDSOMLO
DESIGN BY @FREDSOMLO
CARRER EL TORRENT 3, BAIXOS, 08302 MATARÓ
HELLO@BESTUDIO.CAT
+34 680 99 72 09
+34 680 99 72 09
SEGUEIX-NOS
A INSTAGRAM
A INSTAGRAM
© BESTUDIO 2020
DESIGN BY @FREDSOMLO
DESIGN BY @FREDSOMLO