.
MATARÓ, BARCELONA
2025 | CONSTRUÏT
AUTORS: SILVIA BAULIES I GASPAR BOSCH
PROMOTOR: PRIVAT
FOTOGRAFIA: BE STUDIO

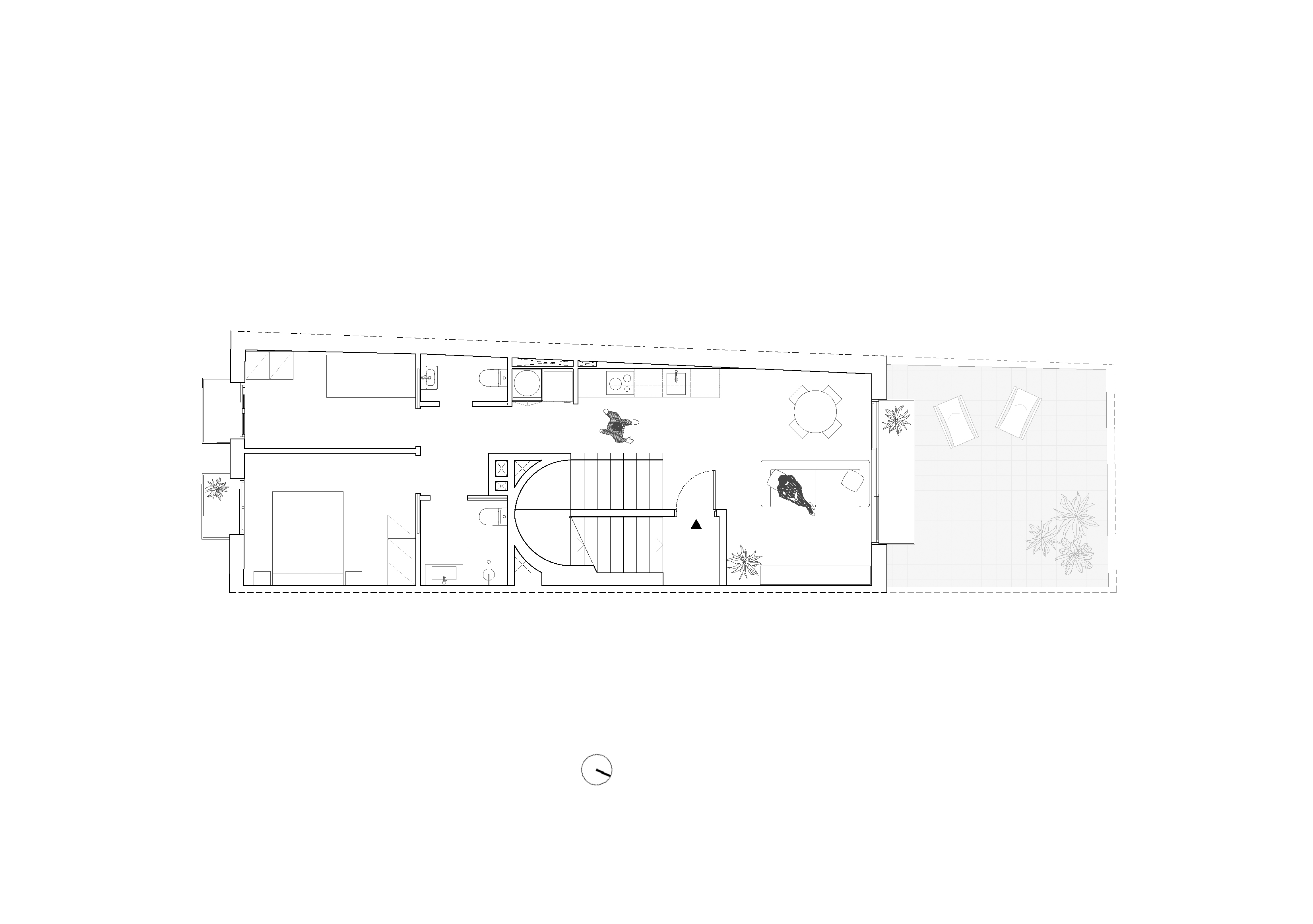
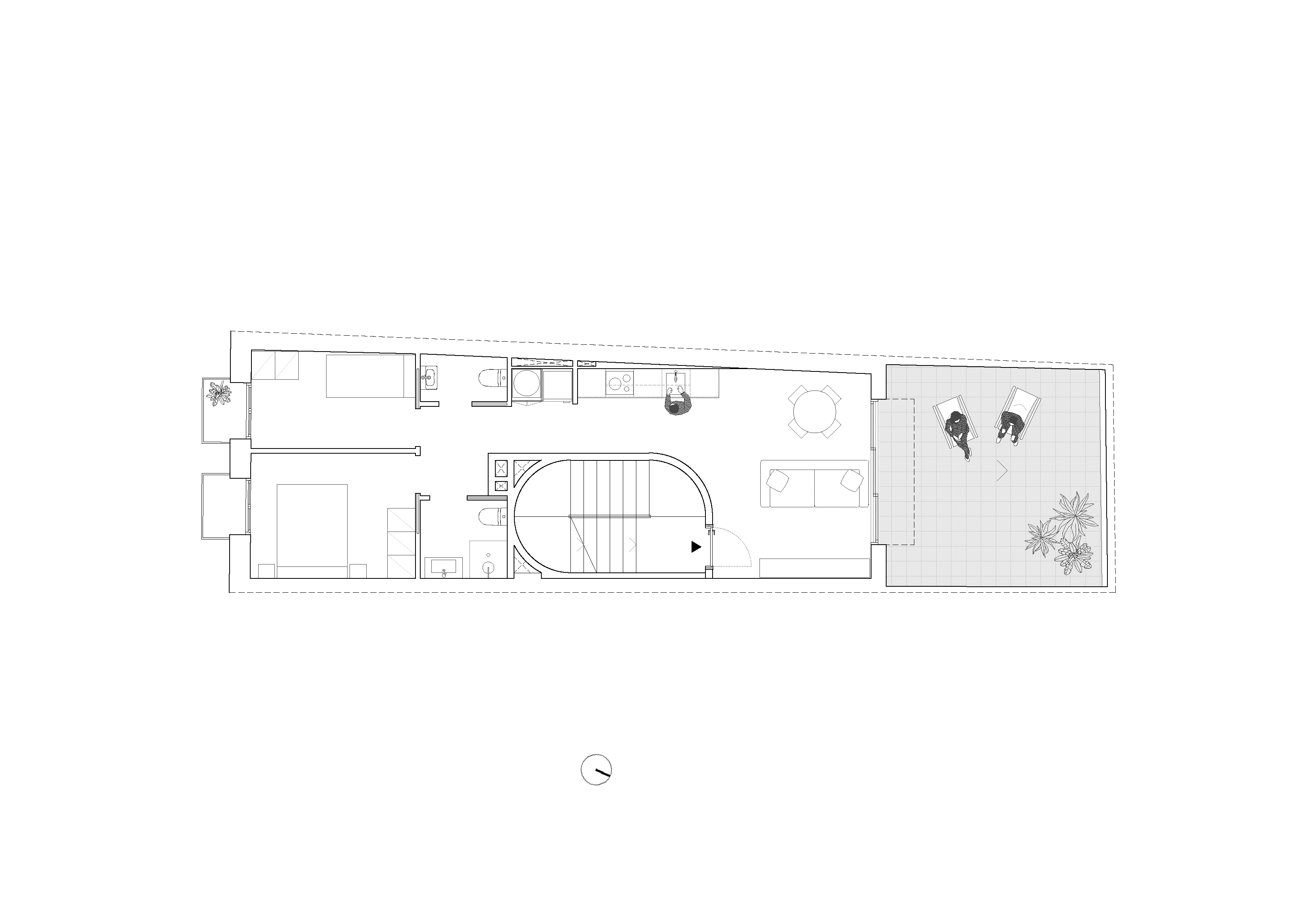
Es tracta d’un edifici plurifamiliar entre mitgeres situat al centre de Mataró. La intervenció consisteix en la reforma i remunta de l’edifici existent, una decisió que respon tant a criteris urbans com ambientals, evitant un enderroc total i reduint significativament la generació de residus de construcció.
Les dimensions reduïdes del solar han requerit una estratègia d’optimització molt precisa. El nucli de comunicació vertical es resol prescindint d’ascensor i amb una escala ampla que pot integrar una plataforma elevadora, solució admesa per la normativa, minimitzant així l’ocupació d’espais comuns. La seva ubicació central permet concentrar-hi els espais servidors i alliberar les façanes per a les estances principals, que guanyen en amplitud, ventilació creuada i visuals llargues, contribuint a millorar el confort i a reduir la percepció d’espais reduïts.
Pel que fa a la materialitat, el projecte busca una imatge coherent i respectuosa amb la preexistència. El verd esdevé el fil conductor de la proposta, reinterpretant el color de les antigues persianes i fusteries de l’edifici original. Aquesta elecció aporta identitat al conjunt, estableix un diàleg amb la memòria de l’edifici i reforça una arquitectura senzilla, equilibrada i arrelada al seu context.
.

MATARÓ, BARCELONA
2025 | CONSTRUÏT
AUTORS: SILVIA BAULIES I GASPAR BOSCH
PROMOTOR: PRIVAT
FOTOGRAFIA: BE STUDIO
Es tracta d’un edifici plurifamiliar entre mitgeres situat al centre de Mataró. La intervenció consisteix en la reforma i remunta de l’edifici existent, una decisió que respon tant a criteris urbans com ambientals, evitant un enderroc total i reduint significativament la generació de residus de construcció.
Les dimensions reduïdes del solar han requerit una estratègia d’optimització molt precisa. El nucli de comunicació vertical es resol prescindint d’ascensor i amb una escala ampla que pot integrar una plataforma elevadora, solució admesa per la normativa, minimitzant així l’ocupació d’espais comuns. La seva ubicació central permet concentrar-hi els espais servidors i alliberar les façanes per a les estances principals, que guanyen en amplitud, ventilació creuada i visuals llargues, contribuint a millorar el confort i a reduir la percepció d’espais reduïts.
Pel que fa a la materialitat, el projecte busca una imatge coherent i respectuosa amb la preexistència. El verd esdevé el fil conductor de la proposta, reinterpretant el color de les antigues persianes i fusteries de l’edifici original. Aquesta elecció aporta identitat al conjunt, estableix un diàleg amb la memòria de l’edifici i reforça una arquitectura senzilla, equilibrada i arrelada al seu context.
CARRER EL TORRENT 3, BAIXOS, 08302 MATARÓ
HELLO@BESTUDIO.CAT
+34 680 99 72 09
+34 680 99 72 09
SEGUEIX-NOS
A INSTAGRAM
A INSTAGRAM
© BESTUDIO 2020
DESIGN BY @FREDSOMLO
DESIGN BY @FREDSOMLO
CARRER EL TORRENT 3, BAIXOS, 08302 MATARÓ
HELLO@BESTUDIO.CAT
+34 680 99 72 09
+34 680 99 72 09
SEGUEIX-NOS
A INSTAGRAM
A INSTAGRAM
© BESTUDIO 2020
DESIGN BY @FREDSOMLO
DESIGN BY @FREDSOMLO