.
MATARÓ, BARCELONA
2025 | BUILT
AUTHORS: SILVIA BAULIES AND GASPAR BOSCH
CLIENT: PRIVATE
PHOTOGRAPHY: BE STUDIO

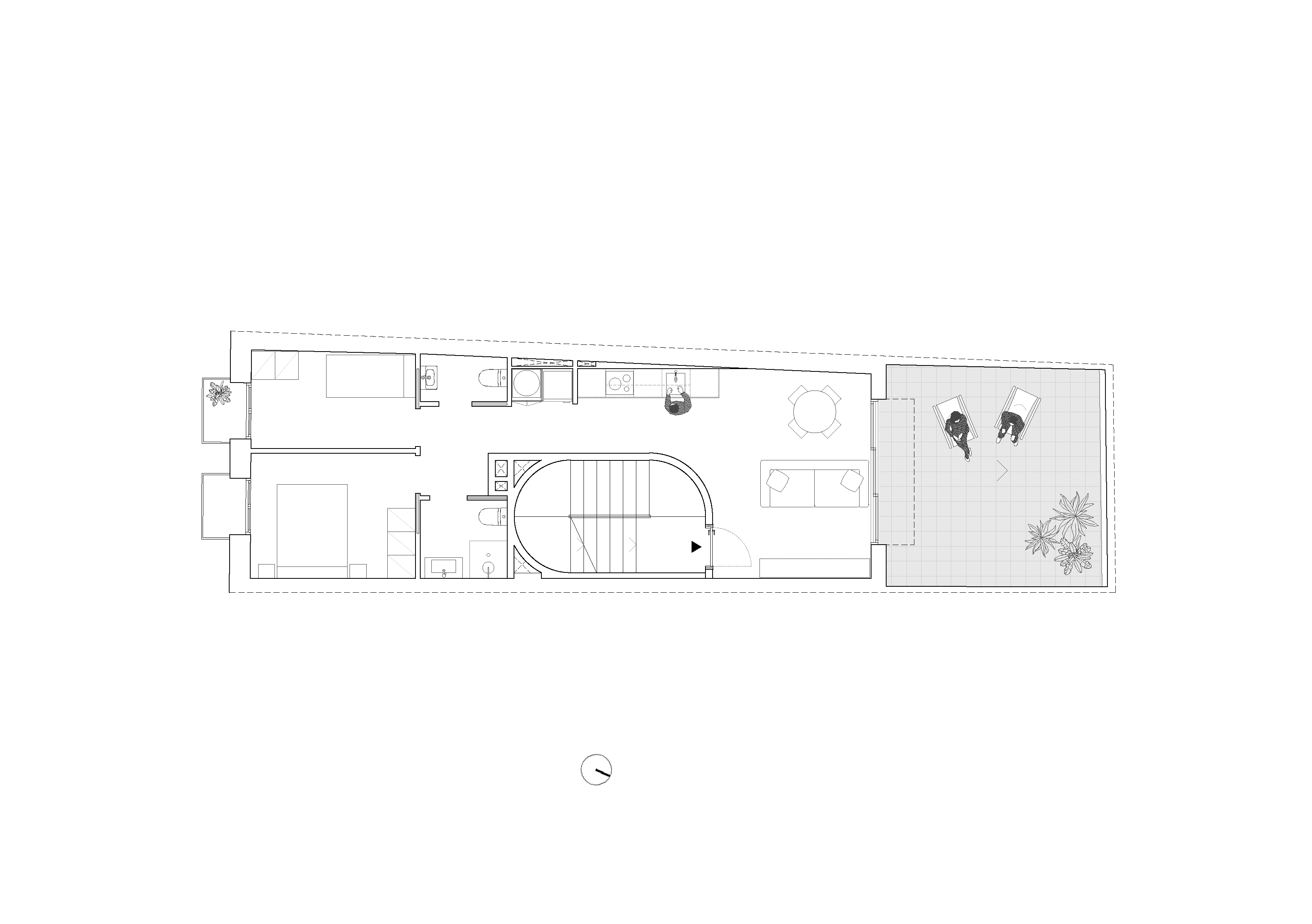
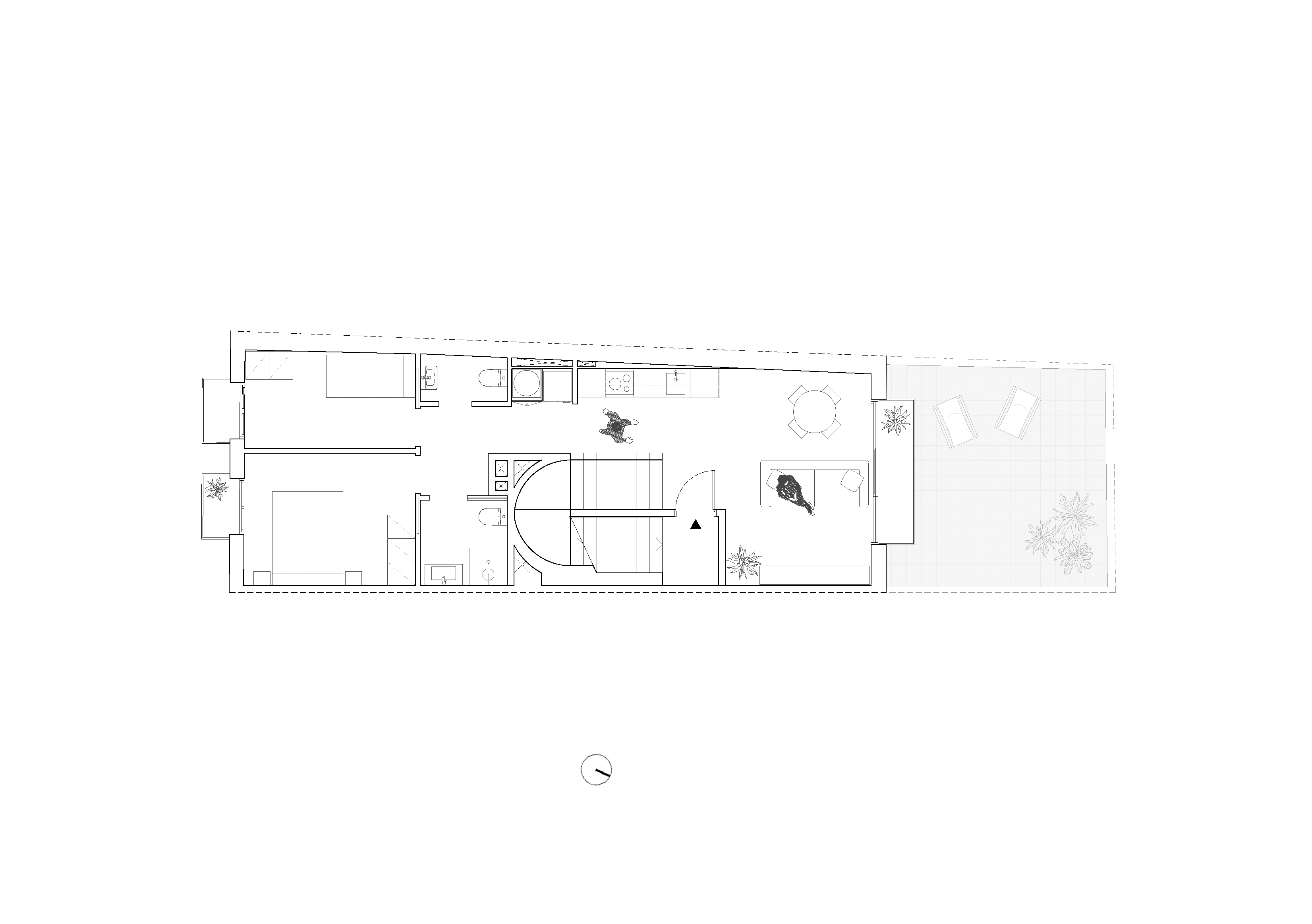
It is a multi-family residential building between party walls located in the centre of Mataró. The intervention consists of the renovation and vertical extension of the existing building, a decision driven by both urban and environmental criteria, avoiding total demolition and significantly reducing the generation of construction waste.
The limited dimensions of the plot have required a highly precise optimisation strategy. The vertical circulation core is resolved without a lift, using a generous staircase that can accommodate a lifting platform, a solution permitted by current regulations, thereby minimising the occupation of communal spaces. Its central position allows service areas to be concentrated around it, freeing up the façades for the main living spaces, which benefit from increased spatial generosity, cross ventilation and long visual connections. This contributes to improved comfort and reduces the perception of constrained spaces.
In terms of materiality, the project seeks a coherent image that is respectful of the existing building. Green becomes the guiding thread of the proposal, reinterpreting the colour of the original building’s old shutters and joinery. This choice gives the project a strong identity, establishes a dialogue with the building’s memory and reinforces a simple, balanced architecture rooted in its context.
CARRER EL TORRENT 3, BAIXOS, 08302 MATARÓ
HELLO@BESTUDIO.CAT
+34 680 99 72 09
+34 680 99 72 09
FOLLOW US
ON INSTAGRAM
ON INSTAGRAM
© BESTUDIO 2020
DESIGN BY @FREDSOMLO
DESIGN BY @FREDSOMLO
C/ SANT FRUCTUÓS, 22
08004 BARCELONA
08004 BARCELONA
HELLO@BESTUDIO.CAT
+34 931 408 908
+34 931 408 908
FOLLOW US
ON INSTAGRAM
ON INSTAGRAM
© BESTUDIO 2020
DESIGN BY @FREDSOMLO
DESIGN BY @FREDSOMLO